HIDDEN HOUSE

DESIGNER & ARCHITECT

In Progress: Schematic Design, Conceptual Design, Design Documentation & Construction Documentation,

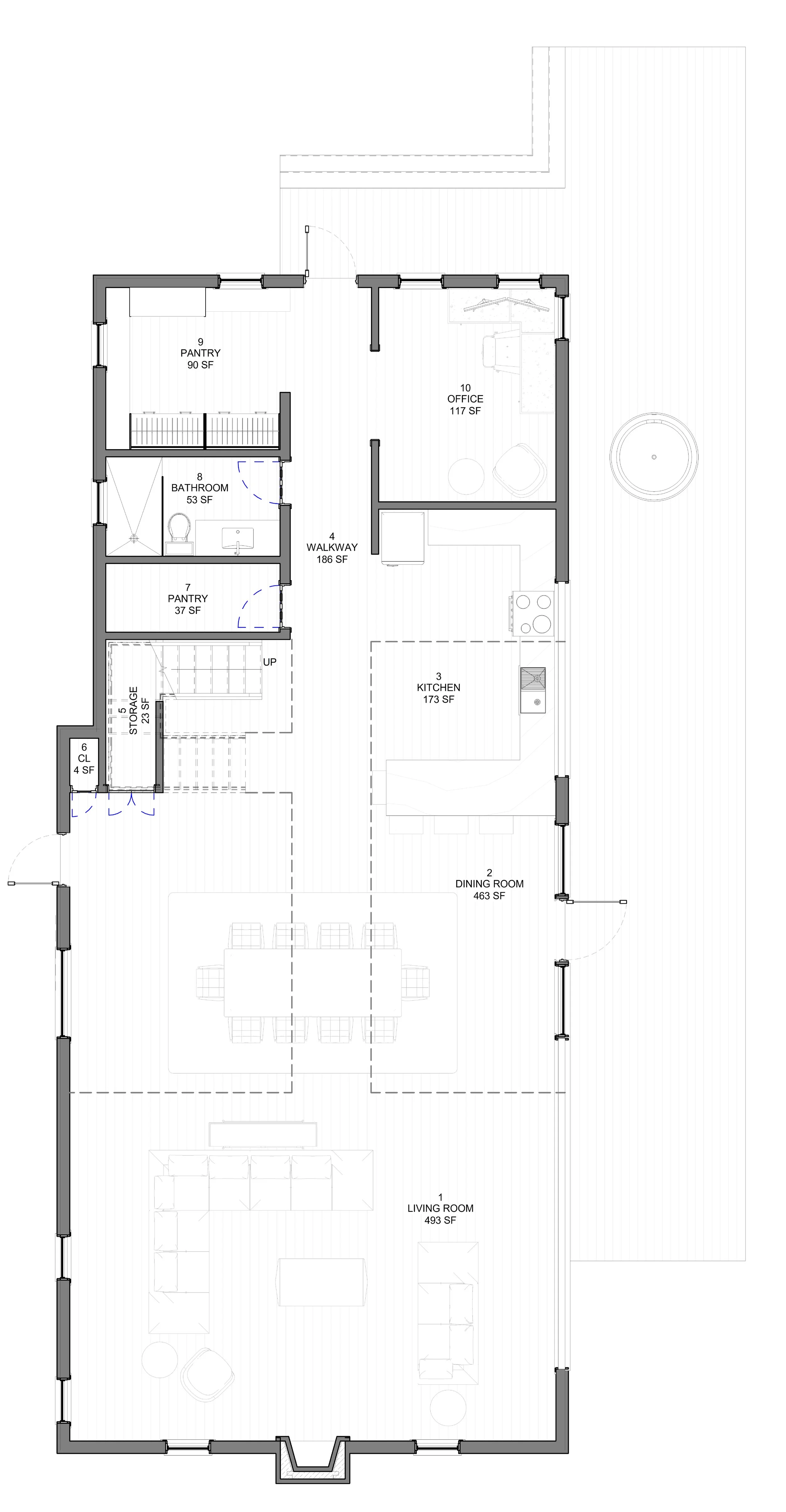
This woodland house on Martha’s Vineyard is designed to disappear into its surroundings. With a muted material palette of shou sugi ban charred cedar, the building takes a harmonious approach to challenging conditions of high humidity: with the cellulose removed from the cedar, the structural component of the wood —lignan— remains, removing potential for rot and insect damage to the siding. Bands of glass are strategically placed to maximize views of the woods while minimizing views into the home. Wrap-around decks create indoor-outdoor living spaces.